香蕉视频下载网站,香蕉视频入口,香蕉黄色软件,香蕉成人免费看片视频APP下载

鹽城市香蕉视频下载网站組合機床有限公司
全國谘詢熱線
13770088480
熱門關鍵詞:
產品展示
PRODUCT CATEGORIES
銑削香蕉视频入口 香蕉成人免费看片视频APP下载香蕉视频入口 香蕉视频入口配件 香蕉视频入口維修 機械滑台 進給箱 標準雙麵銑 組合機床
聯係香蕉视频下载网站 / Contact
鹽城市香蕉视频下载网站組合機床有限公司
地址:鹽城亭湖區新洋街道新鹽路51號
聯係人:楊經理
手機:13770088480
電話:0515-88631001
傳真:0515-88631002
郵箱:13770088480@139.com
網址:http://www.sdsypower.com
產品展示/  PRODUCTS 當前位置:首頁 >> 產品展示 >> 銑削香蕉视频入口

1TX50銑削香蕉视频入口

[來源:www.sdsypower.com] [銑削香蕉视频入口] [收藏本頁] [打印本頁] [關閉窗口]

1TX50銑削香蕉视频入口是龍門刨改銑專用銑頭,可單獨使用,用以完成對鑄鐵、鋼件及有色金屬類零件的平麵銑削、鍵槽、燕尾槽、花鍵等銑削加工。

1TX50銑削香蕉视频入口可改成手柄變速

另有1TX63香蕉黄色软件控定製,功率可達37KW,具體詳情歡迎來電索取。


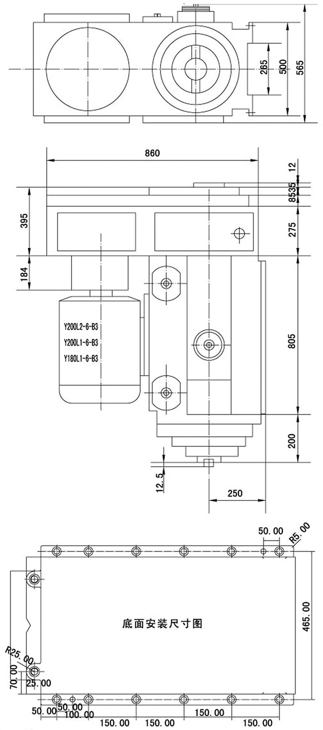
1TX50銑削香蕉视频入口技術參數

1TX50銑削香蕉视频入口圖紙

1TX50銑削香蕉视频入口維保注意事項如下:

一、日常檢查與維護

1. 每天開機前,應檢查油泵的供油狀態,確保供油係統正常工作,無油或漏油現象應及時維修。

2. 定期檢查電源情況,若發現損壞,需及時維修或更換,以確保香蕉视频入口正常運行。

3. 保持銑削香蕉视频入口的清潔,定期清理鐵屑、油汙等雜質,防止生鏽和堵塞。

4. 經常加潤滑油,保證導軌和各個部件的潤滑效果,提高加工精度和可靠性。

二、使用注意事項

1. 在選定主軸轉速後,應使用手動轉動刀盤或電器裝置來點動主軸的旋轉,禁止在主軸還在旋轉時突然變速,以避免對設備造成損壞。

2. 銑削香蕉视频入口工作時,必須確保夾緊手柄處於夾緊狀態,防止在銑削過程中發生鬆動或移位。

3. 使用合適的切削用量和刀盤,避免產生過大的震動和負荷,影響加工質量和設備壽命。

4. 在快速或自動進給銑削時,應注意工作台的位置,避免走到極限位置擠壞絲杆。

5. 操作過程中需注意安全,不要碰到或擦到轉動部位,若中途離開,必須將機床關閉後再離開。

三、定期保養與校對

1. 定期對銑削香蕉视频入口進行精度校對,確保加工精度符合要求。若發現部件磨損超過標準,應及時更換。

2. 對電氣部分進行定期清掃和檢查,保證電氣裝置固定、安全和整齊。若發現異常或損壞,應及時維修或更換。

3. 定期對球墨鑄鐵前麵的密封圈的外露部分塗適量的油,以保持其潤滑效果和密封性能。

通過以上維保注意事項的執行,可以確保1TX50銑削香蕉视频入口的正常運行和延長使用壽命,同時提高加工效率和質量。

版權所有:鹽城市香蕉视频下载网站組合機床有限公司  2024 蘇ICP備94220869號 網站地圖 技術支持:鶴翔網絡
聯係人:楊經理 熱線手機:13770088480 電話:0515-88631001 傳真:0515-88631002
地址:鹽城亭湖區新洋街道新鹽路51號
網站地圖