香蕉视频下载网站,香蕉视频入口,香蕉黄色软件,香蕉成人免费看片视频APP下载

鹽城市香蕉视频下载网站組合機床有限公司
全國谘詢熱線
13770088480
熱門關鍵詞:
產品展示
PRODUCT CATEGORIES
銑削香蕉视频入口 香蕉成人免费看片视频APP下载香蕉视频入口 香蕉视频入口配件 香蕉视频入口維修 機械滑台 進給箱 標準雙麵銑 組合機床
聯係香蕉视频下载网站 / Contact
鹽城香蕉视频下载网站機床
地址:鹽城亭湖區新洋街道新鹽路51號
聯係人:楊經理
手機:13770088480
電話:0515-88631001
傳真:0515-88631002
郵箱:13770088480@139.com
網址:http://www.sdsypower.com
產品展示/  PRODUCTS 當前位置:首頁 >> 產品展示 >> 銑削香蕉视频入口

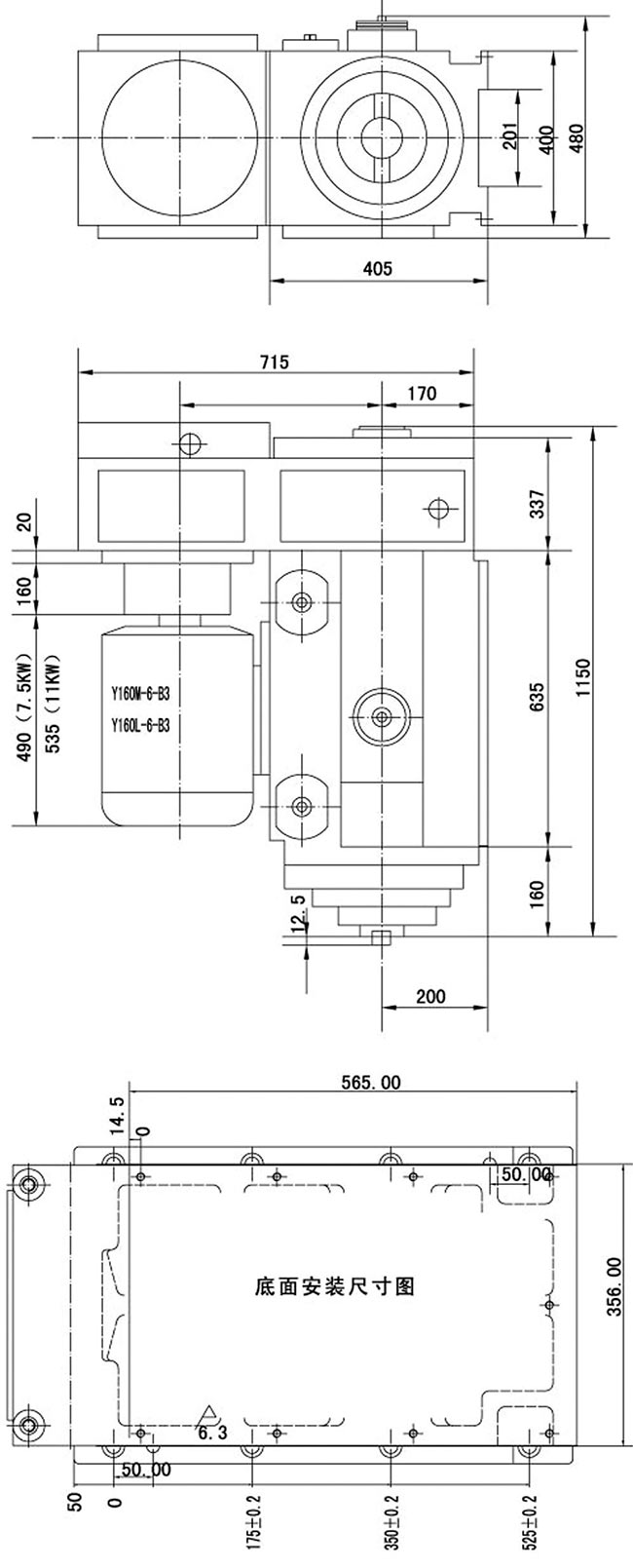
1TX40香蕉黄色软件

[來源:www.sdsypower.com] [銑削香蕉视频入口] [收藏本頁] [打印本頁] [關閉窗口]

1TX40銑削香蕉视频入口是一個專用的銑頭,適用於將龍門刨床改裝為銑床進行使用,也可以獨立使用。這款香蕉视频入口能夠完成多種銑削加工任務,非常適用於鑄鐵、鋼件以及有色金屬類零件的加工。

具體來說,1TX40銑削香蕉视频入口可以完成以下加工任務:

1. 平麵銑削:可以對各種材料的平麵進行高效、精確的銑削。

2. 鍵槽加工:能夠精確地加工出鍵槽,這對於機械部件的連接和裝配至關重要。

3. 燕尾槽加工:燕尾槽常用於機械連接中,這款銑頭也能輕鬆應對此類加工需求。

4. 花鍵加工:花鍵是機械傳動中的重要部件,這款銑頭同樣能夠完成高精度的花鍵加工。

1tx40銑削香蕉视频入口因其高精度、高效率和多功能性,成為了機械加工領域中的一款重要工具。它不僅能夠滿足龍門刨床改裝為銑床的需求,還可以作為獨立的銑削工具,廣泛應用於各種金屬材料的加工中。無論是平麵銑削還是更複雜的鍵槽、燕尾槽、花鍵等加工任務,這款銑頭都能提供出色的性能和精度。如需更多信息,建議谘詢專業的機械工程師或者設備提供商。

版權所有:鹽城市香蕉视频下载网站組合機床有限公司  2024 蘇ICP備94220869號 網站地圖 技術支持:鶴翔網絡
聯係人:楊經理 熱線手機:13770088480 電話:0515-88631001 傳真:0515-88631002
地址:鹽城亭湖區新洋街道新鹽路51號
網站地圖